Механизированная окрасочная линия
Комплектации ручных линий для порошковой окраски:
1. Линия порошковой окраски в комплектации с химическим струйным тоннелем подготовки
Струйная мойка NJ-3, тактовая
Описание технологического процесса
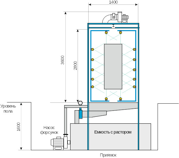
Детали для покраски подвешиваются на балки тактовой подвесной транспортной системы.
В мойке будут проходить следующие процессы:
a. Зона I
• промывка с обезжириванием и фосфатированием – 4 минуты, температура моющего раствора 600C
• стекание – 1,5 минуты
b. Зона II
• промывка – 1 минута 30 с, технологическая вода
• стекание – 1 минута 30 с
• Переключение насосов и клапанов
• промывка II – 1 минута технологическая вода
• стекание – 1 минута 30 с
c. Зона III
• стекание – 6 минут
a. зона обезжиривания и фосфатирования Д= 3,05 м
• продолжительность обезжиривания и фосфатирования – 4 мин.
- количество распыляющих рамок – 8
- количество форсунок в рамке – 16
- общее количество форсунок – 128
- производительность распыляющих насосов – 116 м3/час.
- мощность двигателей насосов – 9,2 кВт
- объем ванны – 3 м3
- нагрев при помощи одного теплообменника с горелкой Riello на природном газе – нагревательная мощность 75 кВт
- температура работы ванны – 600C макс
- пополнение мойки из ванны предварительной промывки
- рабочая камера и ванна изготовлены из химостойкой стали AISI 304
- два вытяжных вентилятора
- маслоотделитель
- мешочный фильтр с насосом из нержавеющей химостойкой стали с фильтровальной тканью
• стекание – 1,5 мин
b. зона полоскания Д= 3,05 м
• промывка I техническая вода – 1,5 минуты
- количество распыляющих рамок – 8
- количество форсунок в рамке – 16
- общее количество форсунок – 128
- производительность распыляющих насосов – 62 м3/час.
- мощность двигателей насосов – 5,5 кВт
- объем ванны – 1,5 м3
• стекание – 1,5 минуты
• промывка II техническая вода – 1 минута
количество распыляющих рамок – 8
- количество форсунок в рамке – 16
- общее количество форсунок – 128
-общая производительность струйного насоса – 75 м3/ч.
-мощность двигателя насоса – 5,5 кВт
-объем ванны – 1,5 м3
• стекание – 1,5 минуты
c. зона стекания – продолжительность 5,5 минуты
- ручной пневматический пистолет для удаления раствора из кармана детали
Расположение сопел в зонах струйной обработки через 400 мм.
Расположение отверстий в соплах через 300 мм.
Подача струи в «квадрат» в зонах обезжиривания и фосфатирования со скоростью 15 л/мин при давлении 1,5 bar, в остальных зонах - 8 л/мин при давлении 1,5 bar.
Дроссельные клапана и манометры на главных коллекторах зон для регулировки и замера давления струи.
Предусмотрена установка вытяжных труб для подключения к вентиляционной установке. Три вытяжных вентилятора: по краям мойки и в зоне обезжиривания и железофосфатирования.
Рабочее пространство изготавливается из нержавеющей стали.
Трубы изготавливаются из ПВХ.
2. Сушильная камера для сушки деталей от воды, проходная
• нагрев при помощи одного косвенного теплообменника с горелкой Riello на природном газе – нагревательная мощность 60 кВт или электрический нагрев в зависимости от имеющихся мощностей на предриятии.
• один циркуляционный вентилятор, производительность 6000 м3/ч.
• блок управления с датчиком и регулятором температуры
• датчик нагрева
• датчик двери
• рабочее пространство изготавливается из оцинкованных листов, пол – из нержавеющей стали
• в крыше сушильной камеры установлены две трубы с заслонками для подсоединения вентиляционной системы
• теплоизоляция 200 мм
• максимальная температура - 1500C
• двустворчатые ручные двери
3. Камера для ручного нанесения порошковых красок

• стационарная, патронного типа
• рабочее пространство изготавливается из нержавеющей стали
• блок управления
• освещение камеры
• система рекуперации порошковой краски
- два съемных блока фильтрации с четырью патронными фильтрами из полиэстера
- система автоматической очистки патронных фильтров
- два вентилятора - каждый с производительностью 6000 м3/ч. при давлении 700 Pa, мощность двигателей 2x4,0 кВт
- два сборника для порошковой краски с флюидизацией и виброситом
- пневматические шланги
- конечный карманный фильтр
• воздуходувки для обдувания – 2 шт.
• средняя скорость воздушного потока через проемы камеры V=0,62 м/с
• средняя концентрация порошковой краски в камере ≤ 10 г/м3
• средняя концентрация порошковой краски в воздухе, выходящем с фильтрационного блока в цех ≤2 мг/м3
4. Печь для полимеризации порошковой краски

• размеры рабочего пространства
• двустворчатые ручные двери
• нагрев при помощи одного косвенного теплообменника с горелкой Riello на природном газе – нагревательная мощность 80 кВт
• один циркуляционный вентилятор, производительность 6000 м3/ч.
• две вытяжных трубы для проветривания печи
• блок управления с датчиком и регулятором температуры
• датчик нагрева
• датчик двери
• рабочее пространство печи изготавливается из оцинкованной огнеупорной стали
• термоизоляция 200 мм
• подготовлена для установки межоперационной транспортной системы.
• максимальная температура 220 C
5. Подвесная транспортная система

• прямой профиль „50”, оцинкованный 98 пог.м
• прямой профиль „70”, оцинкованный 32 пог.м
• балки для подвешивания деталей L= 3100 мм оцинкованные 20 шт.
• траверс трехпутевой 4 шт.
• система прохождения деталей через мойку 1 компл.
• чертеж опорной конструкции транспортной системы 1 компл.
Внимание: В цену не входит опорная конструкция транспортной системы.
6. Блок управления функциями линии

• регулировка температуры в мойке, сушке и печи
• пульт управления
• LCD панель, сенсорный экран
• элементы (реле, датчики) от Moeller
• сигнализация в случае аварийных ситуаций
• электроприводы внутри линии
• каналы для кабеля внутри линии
E. Дополнительное оборудование
7. Генератор ДЕМИ-РЕЦИРКУЛЯЦИОННОЙ воды производительностью 2 м3/ч.

Система замкнутого полоскания с использованием установки ДЕМИ-РЕЦИРКУЛЯЦИИ 2 м3/ч.
Технические параметры:
Максимальная производительность: 2 м3/ч
Температура работы: 5 ÷ 45 °C
Средняя проводимость воды: 20 µS/cm
Количество элюата (экстракта из абсорбента) после регенерации около 2000 л.
расход HCl 33% при каждой регенерации около 20 л;
расход NaOH 30% при каждой регенерации около 20 л;
Спецификация
Подающий насос изготовлен из стали AISI 304 с максимальной производительностью 2 м3/ч; H = 30 м
Предварительный фильтр, механический 50 µm, тип «свечка»
Фильтрационная колонка с активным углем состоит из следующих частей:
- сборник из прозрачного эпоксидного ламината
- внутренние полипропиленовые диффузоры(PP)
- многопутевой клапан с пневматическим управлением.
- фильтрационный материал – активный уголь 100 л
Размеры фильтрационной колонны: H = 1600 мм, диаметр = 400 мм
Катионная колонна состоит из следующих частей:
- сборник из прозрачного эпоксидного ламината
- внутренние полипропиленовые диффузоры (PP)
- многопутевой клапан с пневматическим управлением.
- фильтрационный материал – ионообменная смола катионная 100 л
Размеры фильтрационной колонки : H = 1600 мм, диаметр = 400 мм
Анионная колонна состоит из следующих частей:
- сборник из прозрачного эпоксидного ламината
- внутренние полипропиленовые диффузоры (PP)
- многопутевой клапан с пневматическим управлением, со встроенным сенсором проводимости